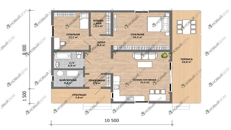
Одноэтажный дом «Винетта» 81 м2 с террасой
- Дом имеет общую площадь - 81 м²
- Габариты (без террасы) - 10.3х9.5 м
- Этажность - 1 этаж
- Высота 1 этажа - 2.8 м
- Количество спален - 2
- Совмещённая кухня-гостиная - 25.5 м²
- Количество санузлов - 1
- Терраса - 23.8 м²
- Техническое помещение - 4.7 м²
Нужна консультация?
Наши специалисты ответят на любой интересующий вопрос
Характеристики
| Габариты | 10,5х9,5 |
| Общая площадь | 81 м² |
| Этажность | Одноэтажный |
Проекты
Услуги
SIP-панели применяются для строительства домов по канадской технологии, бань, а также зданий общественного назначения. Компания “Новый Дом” имеет собственные производственные линии по их изготовлению.
Компания «Новый Дом» реализует СИП-панели в Орле , выполненные из качественных и экологичных материалов. На заводе применяется только сертифицированное оборудование. Технология производства предполагает вакуумное прессование, которое обеспечивает надежную адгезию компонентов SIP панелей на молекулярном уровне. Дома, построенные из этого материала, окупаются менее чем за 20 лет, так как обеспечивают существенную экономию энергоресурсов. Наша компания предлагает лучшие цены на СИП-панели за штуку в Орле .
Преимущества сотрудничества с компанией «Новый Дом»
- Цены от производителя;
- Высокое качество;
- Оперативная доставка;
- Профессиональная консультация.
Чтобы купить СИП-панели от производителя по доступной цене, свяжитесь с менеджерами нашей компании и оформите заказ.
SIP-панели применяются для строительства домов по канадской технологии, бань, а также зданий общественного назначения. Компания «Новый дом» имеет собственные производственные линии по их изготовлению.
Производство ведется на инновационном оборудовании и только из качественных материалов. Все этапы строго контролируются, поэтому брак отсутствует.
Особенности продукции
Размер СИП-панелей для строительства дома составляет 3,125-3,5 м2, толщина от 108 до 224 мм.
Для обшивки используется ОSB-3 плита, толщиной 9-12 мм, полностью соответствующая классу экологичности Е1 и высоким международным стандартам качества. Утеплитель - фасадный пенополистирол высокой плотности.
Купить СИП-панели в Орле по выгодной цене
Цена зависит от особенностей конкретной конструкции, размеров и толщины. Для приобретения сэндвич-панелей с доставкой на участок, заполните заявку на нашем сайте. Наши менеджеры подскажут вам всю интересующую информацию и произведут предварительный расчет стоимости.
Для производства наших SIP-панелей мы используем только самые качественные материалы лучших и проверенных производителей, имеющиеся на мировом рынке строительства:
Обшивка
Плиты ОSB-3:
Производитель Kalevala (Карелия).
Класс экологичности по международным стандартам Е1.
Утеплитель
Фасадный пенополистирол ПСБ-С 25 Ф.
Плотность (16-17 кг/м3).
Производитель НовоПласт (Тульская обл., г. Алексин).
| Размеры панелей | Толщина СИП-панели, мм | Толщина ОСП, мм | Площадь панели, м2 |
Изготовление |
|---|---|---|---|---|
|
СИП Панель 2500х1250 |
108 мм | 9 мм |
3.125 м² |
до 5 дней |
| CИП Панель 2800х1250 | 3.5 м² | до 5 дней | ||
|
СИП Панель 2500х1250 |
110 мм | 10 мм | 3.125 м² |
до 5 дней |
| СИП Панель 2800х1250 | 3.5 м² | до 5 дней | ||
|
СИП Панель 2500х1250 |
114 мм |
12 мм |
3.125 м² |
до 5 дней |
|
СИП Панель 2800х1250 |
3.5 м² | до 5 дней | ||
|
СИП Панель 2500х1250 |
118 мм | 9 мм |
3.125 м² |
в наличии |
|
СИП Панель 2800х1250 |
3.5 м² | в наличии | ||
|
СИП Панель 2500х1250 |
120 мм | 10 мм |
3.125 м² |
в наличии |
|
СИП Панель 2800х1250 |
3.5 м² | в наличии | ||
|
СИП Панель 2500х1250 |
124 мм | 12 мм |
3.125 м² |
в наличии |
|
СИП Панель 2800х1250 |
3.5 м² | в наличии | ||
|
СИП Панель 2500х1250 |
158 мм | 9 мм |
3.125 м² |
в наличии |
|
СИП Панель 2800х1250 |
3.5 м² | в наличии | ||
|
СИП Панель 2500х1250 |
160 мм | 10 мм | 3.125 м² | в наличии |
|
СИП Панель 2800х1250 |
3.5 м² | в наличии | ||
|
СИП Панель 2500х1250 |
164 мм | 12 мм | 3.125 м² | в наличии |
|
СИП Панель 2800х1250 |
3.5 м² | в наличии | ||
|
СИП Панель 2500х1250 |
170 мм | 10 мм | 3.125 м² | до 5 дней |
|
СИП Панель 2800х1250 |
3.5 м² | до 5 дней | ||
|
СИП Панель 2500х1250 |
174 мм | 12 мм | 3.125 м² | до 5 дней |
|
СИП Панель 2800х1250 |
3.5 м² | до 5 дней | ||
|
СИП Панель 2500х1250 |
220 мм | 10 мм | 3.125 м² | до 5 дней |
|
СИП Панель 2800х1250 |
3.5 м² | до 5 дней | ||
|
СИП Панель 2500х1250 |
224 мм | 12 мм | 3.125 м² | до 5 дней |
|
СИП Панель 2800х1250 |
3.5 м² | до 5 дней |

